vertical smoker/food configuration

A place to discuss low 'n' slow cooking, ask questions and share advice.
Post Reply
Vic.
Twisted Firestarter
Twisted Firestarter
Posts: 435
Joined: 03 Feb 2011, 23:20
First Name: Vic
Location: N.Ireland.

vertical smoker/food configuration

Post by Vic. »

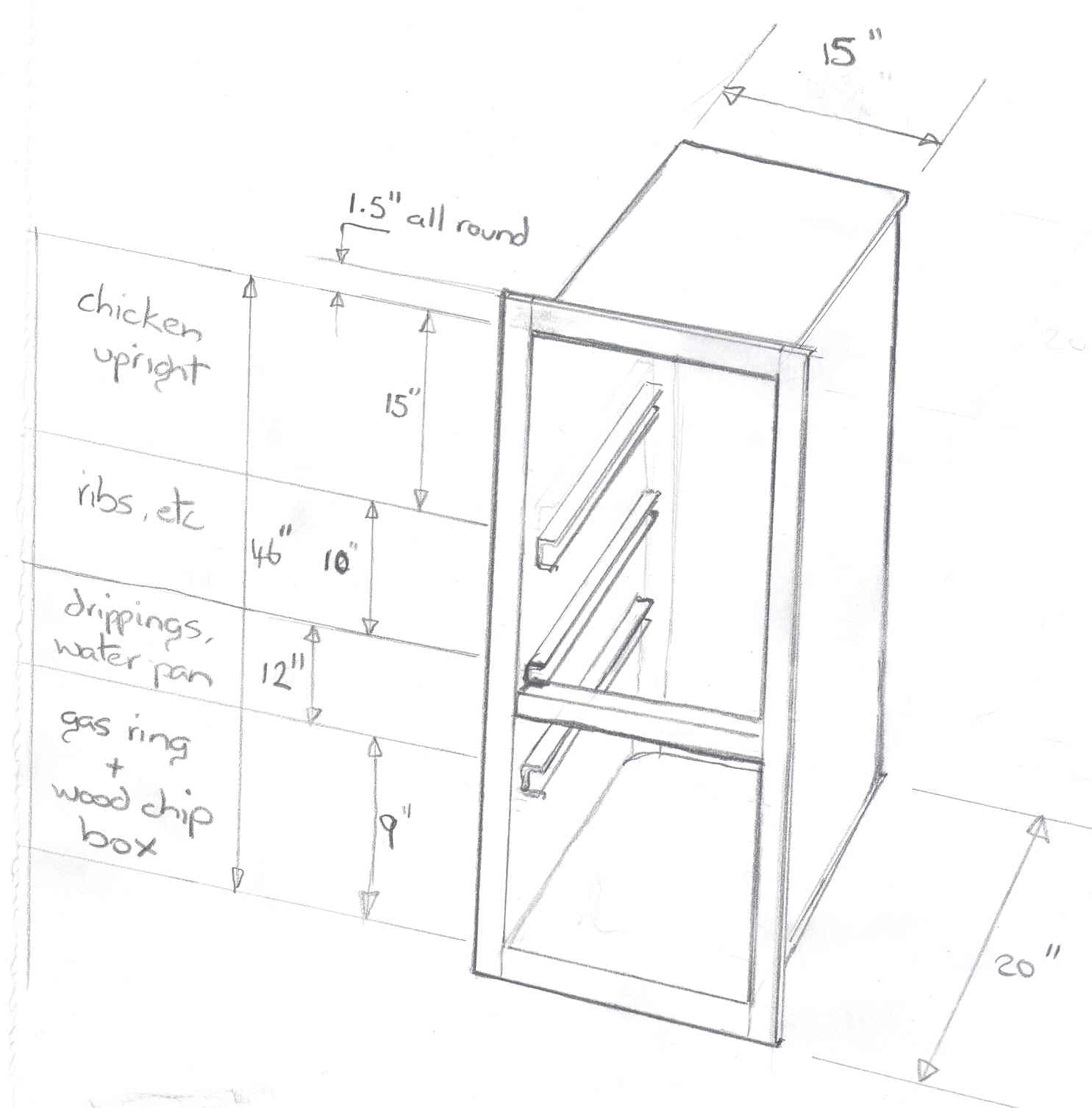
On another thread a member mentioned that chicken takes on smoke quickly. As I'm in the process of getting my vertical/filecabinet smoker made I'd like some opinions on where to stack my foods. I was planning on cooking different foods together, I've done a drawing which I thought would work, it'll give you an idea on what I plan to do. This is the inner for the filecabinet.

Should the chicken be closer to the heat source as the smoke will be mostly at the top?, what about sausages? where would you stack them?
inner metal sheet 3.jpg
Vic.
Twisted Firestarter
Twisted Firestarter
Posts: 435
Joined: 03 Feb 2011, 23:20
First Name: Vic
Location: N.Ireland.

Re: vertical smoker/food configuration

Post by Vic. »

good point Al
LM600

Re: vertical smoker/food configuration

Post by LM600 »

Yep, Chicken on the lower rack...if for nothing else than all that lovely, goodness that is whatever is cooking above will baste the chicken below!
Post Reply